Sewer main is somewhat unclogged. We can now flush the toilet without water backing up in the basement, but the pipe was too clogged to allow the camera to go more than 20 feet from the cleanout. The plumber advised we go easy on the toilet paper, at least until his return December 28 to scour out the sewer main using high-pressure water. Then we can try the camera again and see if the sewer line is damaged and if so how badly.
We have three guys giving us cost estimates for installing living room flooring and repairing (termite damage) and refinishing the bedroom floors. Should have all the estimates by the end of Monday.
Mildew remediation completed. Spore density test came back much much lower. What a relief.
I need better photos for this blog, if I'm going to ask people to look at it and advise me.
Sharing what we learn as we repair, maintain, and live in our midcentury-built split-level home.
Sunday, December 19, 2010
The Living Room Flooring
Underneath the pink carpet, in a path leading from the front door to the kitchen, we found some kind of sheet flooring. Probably put there to withstand the most heavily trafficked area of the house. It looks like it may have had a colorful confetti-esque design which faded from age.
I have begun to remove the pink floral wallpaper from the entryway walls. The vinyl top layer stripped off pretty easily, but the fuzzy backing is still waiting for me to get back to it.
A neat thing about the coat closet is the switch in the doorframe to automatically turn on the light when you open the door.
The Kitchen
Sometime in this house's history (possibly the 1980s), the kitchen was redecorated. The original multicolored linoleum flooring was buried under white ceramic tile, the backsplash became white tile with blue Delft-style accents, and the countertops became blue-gray laminate. No idea what the original sink was like.
However, the kitchen cabinets seem to be original. They are battered but well-made and still solid. Here is what they looked like on a manufacturer's postcard (image from the blog Viewliner Ltd.).

In one of the base cabinets, I found a wooden cutting board stored in a bracket mounted underneath the drawer. The cutting board itself would have been very attractive, if it had not been for the impressive crop of grey mildew growing on both sides.
Mounted on a wall cabinet by the sink, there is an odd little metal thingy. It seems to be some kind of hinge, maybe a base for a swinging arm? What could it have been used for?
A hole has been cut in the blind corner cabinet to accommodate a dishwasher.



![]() ![]() ![]() | |
| Scheirich Kitchens medallion, under the sink | . |
However, the kitchen cabinets seem to be original. They are battered but well-made and still solid. Here is what they looked like on a manufacturer's postcard (image from the blog Viewliner Ltd.).

In one of the base cabinets, I found a wooden cutting board stored in a bracket mounted underneath the drawer. The cutting board itself would have been very attractive, if it had not been for the impressive crop of grey mildew growing on both sides.
| The fuzzy cutting board |
Mounted on a wall cabinet by the sink, there is an odd little metal thingy. It seems to be some kind of hinge, maybe a base for a swinging arm? What could it have been used for?
![]() |
| What is this mysterious doodad? |
A hole has been cut in the blind corner cabinet to accommodate a dishwasher.



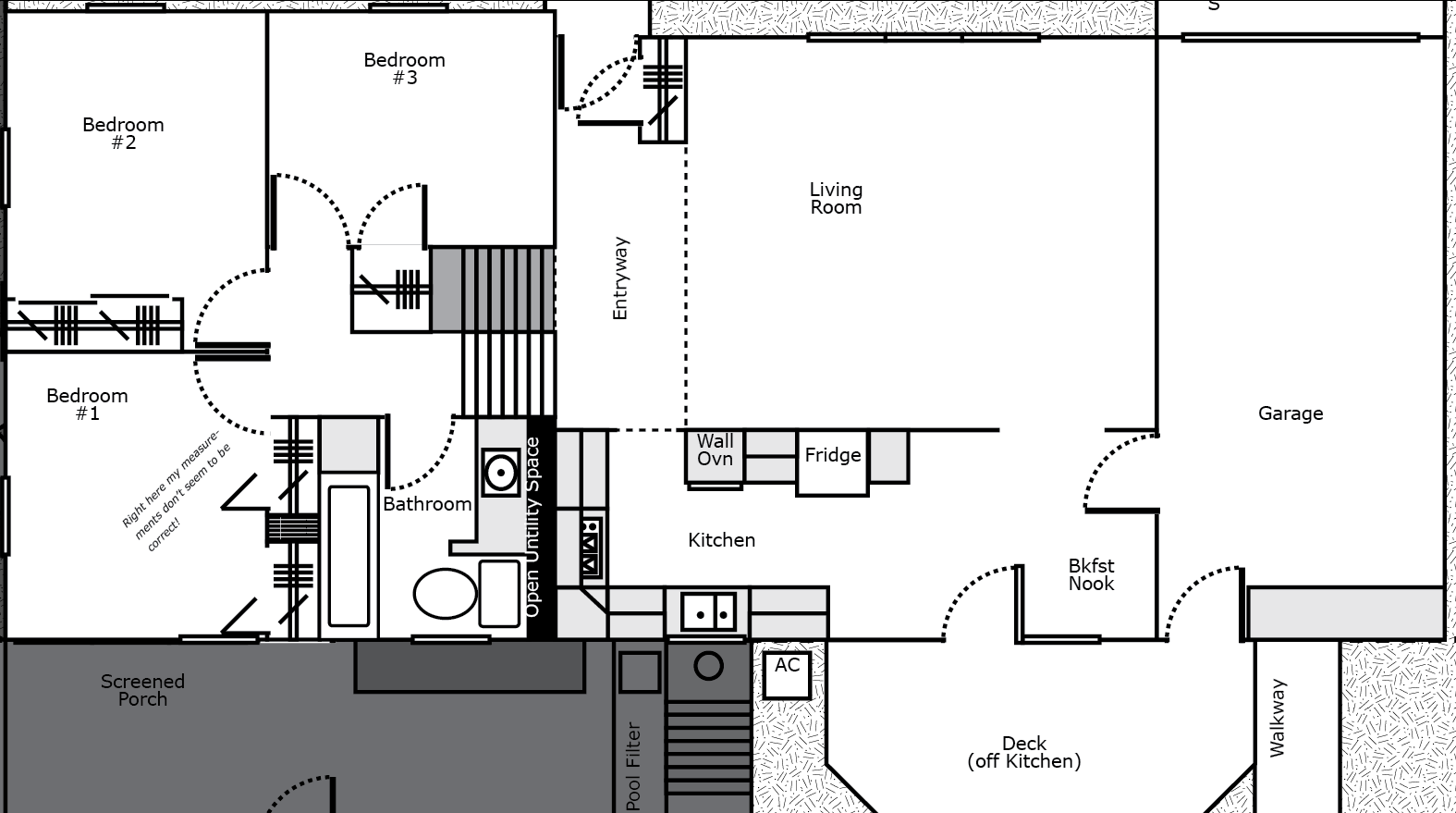
The Floorplan
I've always liked having scale drawings of the places I live. For this adventure, I made a layered diagram on the computer instead of using pencil and graph paper. Maybe I got a little carried away with it...
These drawings are not perfectly accurate. I expect I will return to them often to make corrections as we go about fixing the place up.
These drawings are not perfectly accurate. I expect I will return to them often to make corrections as we go about fixing the place up.
![]() |
| The house and lot. |
![]() |
| There are a total of four levels (if I counted correctly). The bedrooms and bath #1 (1), living room and kitchen (2),... |
![]() |
| ...the rec room and bath #2 (3), and the unfinished basement (4). |
The Beginning of Our Split-Level Adventures
Tom and I had been on-again off-again searching for a better house for maybe a couple of years, but without luck. Of the houses we could afford, we rejected many because of foundation damage or other daunting stuctural qualities, and the rest because Tom and I had differing aesthetics; he wanted a ranch-style home like he and his friends grew up in, and I kept finding myself drawn to blocky bungalows and other quirky little abodes. I finally gave up, resigned myself to staying in our current home indefinitely, and stopped wasting my realtor's time.
A few months later, in a moment of boredom, I again looked online for houses. This time only two fit our search criteria, one of them a ranch-style split-level with inground pool. The pool deterred me; I wanted nothing to do with the maintenence and liability. But something about the house amused me, and I sent a link to Tom in jest. He replied with serious interest, and I reconsidered. I called my realtor and we went to see it.
It smelled, of dirty carpet and stale air and mildew and dust. The house had been vacant for about three years and the lack of ventilation (we supposed) had allowed light grey mildew to bloom on doors and acoustic tiles. The windows were covered with dark, opressive curtains. However, the spaces of the house were welcoming, and almost immediately my imagination populated the house with visiting friends.
Even the stairways between the levels were inviting. I don't remember ever having been in a house with that layout before. I wandered up and down the stairs just experiencing the levels, with a big goofy smile on my face. The more we explored the house, the more we liked it.
We went home marveling that we had found a house that we both liked simultaneously.
Closing was December 3, 2010.
A few months later, in a moment of boredom, I again looked online for houses. This time only two fit our search criteria, one of them a ranch-style split-level with inground pool. The pool deterred me; I wanted nothing to do with the maintenence and liability. But something about the house amused me, and I sent a link to Tom in jest. He replied with serious interest, and I reconsidered. I called my realtor and we went to see it.
It smelled, of dirty carpet and stale air and mildew and dust. The house had been vacant for about three years and the lack of ventilation (we supposed) had allowed light grey mildew to bloom on doors and acoustic tiles. The windows were covered with dark, opressive curtains. However, the spaces of the house were welcoming, and almost immediately my imagination populated the house with visiting friends.
Even the stairways between the levels were inviting. I don't remember ever having been in a house with that layout before. I wandered up and down the stairs just experiencing the levels, with a big goofy smile on my face. The more we explored the house, the more we liked it.
We went home marveling that we had found a house that we both liked simultaneously.
Closing was December 3, 2010.
| I will learn to crop photos soon. |
Subscribe to:
Comments (Atom)






